Home
ブランド紹介
募集中物件
会社案内
会社案内
COMPANY
ご挨拶・企業理念
会社概要・沿革
事業案内
コーポレートガバナンス
アクセス
IR情報
IR情報
IR
IR情報
財務情報
財務ハイライト
IRカレンダー
IRライブラリー
株式について
電子公告
株価情報
採用情報
採用情報
RECRUIT
採用情報
中途採用
新卒採用
トピックス
お問合せ
Home
募集中物件一覧
CONCEPT
コンセプト
OUTLINE
建築概要
物件名
敷地面積
0.00㎡(坪)
建物面積
0.00㎡(坪)
延床面積
0.00㎡(坪)
設備概要
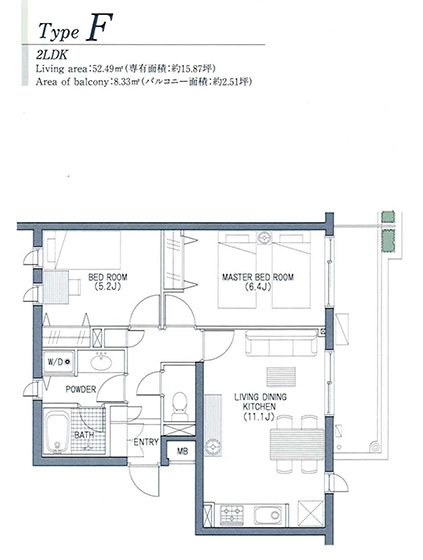
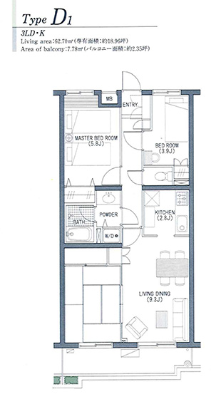
PLAN
間取り図
特色・詳細